Træk

2 værelses lejlighed på 62 m²

Willemoesgade 66, st. tv, 6700 Esbjerg

Helt ny gennemgribende renoveret lejlighed med stor altan

Lejligheden er placeret på en rolig sidegade med nem adgang til indkøb, byliv og grønne områder.

Lejligheden er forud for indflytning helt nyrenoveret med alt nyt: gulve, lofter, pudsede vægge, nyt køkken, nyt badeværelse og alle hårde hvidevarer – herunder opvaskemaskine og egen vaskemaskine og tørretumbler. Derudover er der etableret en stor ny altan med plads til siddepladser.

Der er gennemgående gulve i lys eg LVT, hvidmalede vægge og hvide gipslofter. I køkken og badeværelse er spots-lys og i badeværelse troldtekt loft.

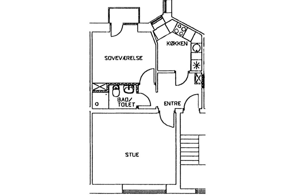
Indretningen består af en rummelig entré, der fungerer som fordelingsgang, et køkken i god størrelse, en lys og rummelig stue samt et soveværelse med indbyggede skabe og adgang til den store altan. Badeværelset tilgås fra gangen og har nye fliser, gulvvarme, håndklædetørrer, væghængt toilet og opbevaring. Loftet i badeværelset er hvid troldtekt med spots. 

Ejendommen byder på et hyggeligt gårdmiljø, aflåst cykelparkering i kælder og mulighed for egen parkeringsplads – samt let adgang til gratis parkering i nærområdet.

Lejligheden er pt. under renovering og billeder kommer derfor senere. Ny køkkenopsats afviger fra viste plantegning.

Detaljer om lejemålet

Er du interesseret?

Kontakt os for nærmere info og fremvisning

Kunne du godt tænke dig at se lejemålet eller har du spørgsmål? Så er du mere end velkommen til at skrive eller ringe til os.

Månedlig leje

7.100 kr.

Ledig fra 1. april
Lejeperiode ubegrænset

Aconto varme 500 kr./md.
Aconto vand 300 kr./md.

Depositum 21.450 kr. (3 mdr. leje)
Ingen forudbetalt leje

Om lejemål

Området

Fandt du ikke hvad du søgte?

Tilmeld dig vores søgeagent

Her kan du tilmelde dig vores søgeagent og få direkte besked på mail, når der er ledige boliger eller erhvervslejemål, der passer til dine behov.

Er du interesseret?

Kontakt os for nærmere info og fremvisning

Kunne du godt tænke dig at se lejemålet eller har du spørgsmål? Så er du mere end velkommen til at skrive eller ringe til os.

Er du interesseret?

Træt af formularer? Kontakt direkte på mail eller telefon

Ejendomsadministration