Træk

2 værelses lejlighed på 54 m²

Willemoesgade 62, st. tv, 6700 Esbjerg

Helt ny gennemgribende renoveret lejlighed

Lejligheden er placeret på en rolig sidegade med nem adgang til indkøb, byliv og grønne områder.

Lejligheden er forud for indflytning helt nyrenoveret med alt nyt: gulve, lofter, pudsede vægge, nyt køkken, nyt badeværelse og alle hårde hvidevarer – herunder opvaskemaskine og kombi vaskemaskine/tørretumbler. 

Der er gennemgående gulve i lys eg LVT, hvidmalede vægge og hvide gipslofter. I køkken og badeværelse er spots-lys og i badeværelse troldtekt loft.

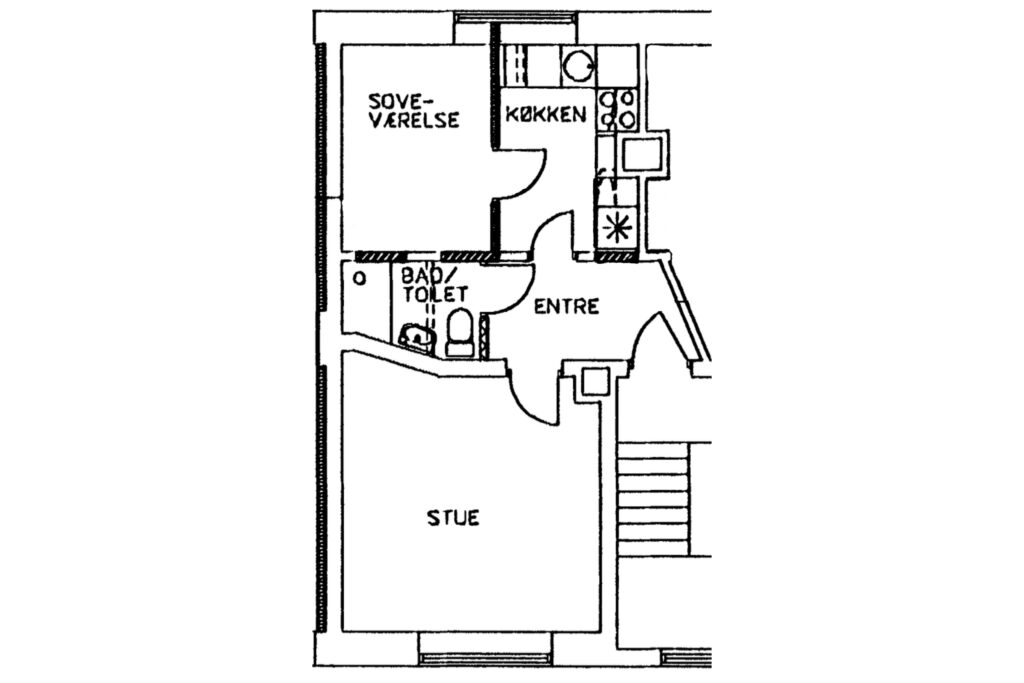
Indretningen består af en entré, der fungerer som fordelingsgang, et funktionelt lyst køkken, en lys rummelig stue samt et mindre soveværelse med indbygningskab. Badeværelset tilgås fra gangen.

Ejendommen byder på et hyggeligt gårdmiljø, aflåst cykelparkering i kælder og mulighed for egen parkeringsplads – samt let adgang til gratis parkering i nærområdet.

Lejligheden er pt. under renovering, og billeder kommer derfor senere.

Detaljer om lejemålet

Er du interesseret?

Kontakt os for nærmere info og fremvisning

Kunne du godt tænke dig at se lejemålet eller har du spørgsmål? Så er du mere end velkommen til at skrive eller ringe til os.

Månedlig leje

6.150 kr.

Ledig fra 1. marts
Lejeperiode ubegrænset

Aconto varme 400 kr./md.
Aconto vand 250 kr./md.

Depositum 18.450 kr. (3 mdr. leje)
Ingen forudbetalt leje

Om lejemål

Området

Fandt du ikke hvad du søgte?

Tilmeld dig vores søgeagent

Her kan du tilmelde dig vores søgeagent og få direkte besked på mail, når der er ledige boliger eller erhvervslejemål, der passer til dine behov.

Er du interesseret?

Kontakt os for nærmere info og fremvisning

Kunne du godt tænke dig at se lejemålet eller har du spørgsmål? Så er du mere end velkommen til at skrive eller ringe til os.

Er du interesseret?

Træt af formularer? Kontakt direkte på mail eller telefon

Ejendomsadministration