Træk

4 værelses lejlighed på 107 m²

Marbækvej 4, 3. sal, 6700 Esbjerg

Nyrenoveret penthouse lejlighed med nyt køkken og bad, samt 4 altaner

(Billeder er taget under renovering)

Lejligheden byder bl.a. på:
Nyt Designa køkken med hvidevarer (inkl. opvaskemaskine, vaskemaskine og tørretumbler), Nyt badeværelse med gulvarme, spots i badeværelse, nyt genvex anlæg, indbygningsskabe på alle værelser, nye glasdøre på værelser, 4 altaner. 

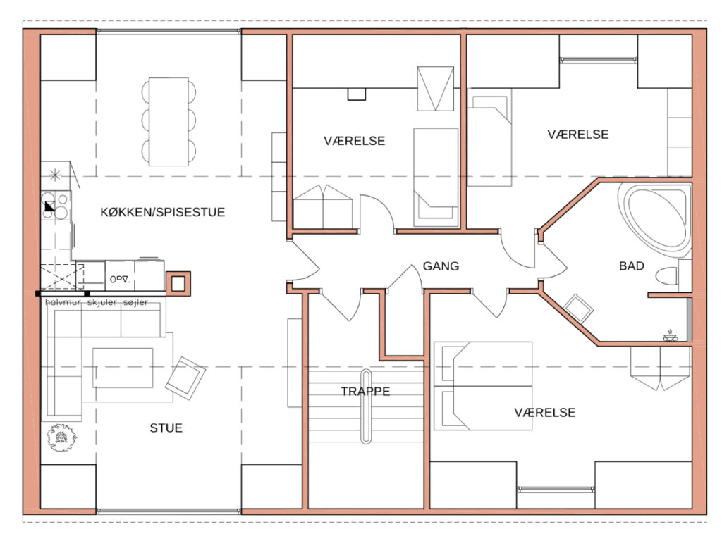
Lejligheden indeholder et køkken i åben forbindelse med stue, som har store vinduespartier og altaner til begge sider.

Herfra er der adgang til en fordelingsgang, der leder til tre regulære soveværelser – alle med nye indbygningsskabe – samt et stort badeværelse med vaskemaskine og tørretumbler. To af soveværelserne har egen altan, hvor der ligeledes er helt nye glasdøre i. 

Der er nyt genvex ventilationsanlæg i lejligheden.

Lejligheden byder på lyse, åbne rum med loft til kip og synlige hanebånd. Perfekt til dig, der ønsker at bo centralt og med masser af plads.

Der er massiv plankegulv gennemgørende i lejligheden og i stuen douglas planker. 

Der er mulighed for at leje privat p-plads i gården, og der er gratis gadeparkering i området.

Detaljer om lejemålet

Er du interesseret?

Kontakt os for nærmere info og fremvisning

Kunne du godt tænke dig at se lejemålet eller har du spørgsmål? Så er du mere end velkommen til at skrive eller ringe til os.

Månedlig leje

10.900 kr.

Ledig fra 15. dec.
Lejeperiode ubegrænset

Aconto varme 600 kr./md.
Aconto vand 300 kr./md.

Depositum 32.700 kr. (3 mdr. leje)
Ingen forudbetalt leje

Om lejemål

Området

Fandt du ikke hvad du søgte?

Tilmeld dig vores søgeagent

Her kan du tilmelde dig vores søgeagent og få direkte besked på mail, når der er ledige boliger eller erhvervslejemål, der passer til dine behov.

Er du interesseret?

Kontakt os for nærmere info og fremvisning

Kunne du godt tænke dig at se lejemålet eller har du spørgsmål? Så er du mere end velkommen til at skrive eller ringe til os.

Er du interesseret?

Træt af formularer? Kontakt direkte på mail eller telefon

Ejendomsadministration